[로이슈 편도욱 기자] 문래동의 대형 정비사업이 움직이기 시작했다.
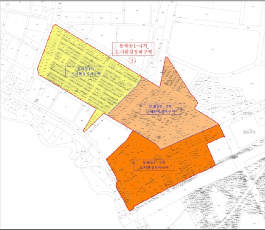
17일 부동산 업계 관계자에 따르면 약 1200세대가 건립될 것으로 예상되고 있는 서울 영등포구 문래동 4가 도시환경정비사업 추진위원회(변경) 설립 승인 신청서가 접수됐다. 해당 신청서는 지난 15일 영등포구청 주택과에 접수됐으며 약 한달간의 검토기간을 거쳐 오는 5월 27일 설립 승인될 것으로 기대되고 있다고 관계자는 전했다.
해당 사업지는 문래 자이를 제외하고는 소규모 아파트 단지가 주로 건립돼 있는 문래동에 보기드문 1000세대 이상 대형단지 개발 사업장이다. 최근 건설업계가 도시정비사업지 확보에 어려움을 겪고 있기 때문에 해당 사업지에 관심이 높아지고 있는 상태다. 문래동의 경우 신규 아파트 단지 공급이 소규모로 이뤄지고 있기 때문에 해당 사업을 통해 새로운 랜드마크가 탄생될 것으로 분석되고 있다.
최근까지 문래동 4가 개발사업은 공공관리제도로 추진하고 있는 조합방식과 토지 등 소유자 방식 등 사업진행방식을 갖고 주민들 간의 이견으로 난항을 겪은 바 있다. 하지만 이번 신청서 제출로 조합 사업으로 해당 개발 사업이 진행될 것으로 예상되고 있는 것으로 전해졌다.
편도욱 기자 toy1000@lawissue.co.kr
급물살 타는 문래동4가 개발사업…추진위 설립 승인 신청서 접수
기사입력:2019-04-17 23:38:19
<저작권자 © 로이슈, 무단 전재 및 재배포 금지>
로이슈가 제공하는 콘텐츠에 대해 독자는 친근하게 접근할 권리와 정정ㆍ반론ㆍ추후 보도를 청구 할 권리가 있습니다.
메일:law@lawissue.co.kr / 전화번호:02-6925-0217
메일:law@lawissue.co.kr / 전화번호:02-6925-0217
주요뉴스
핫포커스
투데이 이슈
투데이 판결 〉
베스트클릭 〉
주식시황 〉
| 항목 | 현재가 | 전일대비 |
|---|---|---|
| 코스피 | 4,129.68 | ▲21.06 |
| 코스닥 | 919.67 | ▲4.47 |
| 코스피200 | 590.08 | ▲5.87 |
가상화폐 시세 〉
| 암호화폐 | 현재가 | 기준대비 |
|---|---|---|
| 비트코인 | 128,287,000 | ▲117,000 |
| 비트코인캐시 | 905,500 | ▼3,000 |
| 이더리움 | 4,293,000 | 0 |
| 이더리움클래식 | 17,860 | ▼30 |
| 리플 | 2,724 | ▼12 |
| 퀀텀 | 1,874 | ▼5 |
| 암호화폐 | 현재가 | 기준대비 |
|---|---|---|
| 비트코인 | 128,145,000 | ▲5,000 |
| 이더리움 | 4,293,000 | ▲2,000 |
| 이더리움클래식 | 17,830 | ▼20 |
| 메탈 | 531 | ▼2 |
| 리스크 | 299 | ▲1 |
| 리플 | 2,724 | ▼11 |
| 에이다 | 545 | 0 |
| 스팀 | 104 | ▲2 |
| 암호화폐 | 현재가 | 기준대비 |
|---|---|---|
| 비트코인 | 128,240,000 | ▲90,000 |
| 비트코인캐시 | 907,000 | ▼1,000 |
| 이더리움 | 4,294,000 | ▲1,000 |
| 이더리움클래식 | 17,880 | ▼20 |
| 리플 | 2,724 | ▼11 |
| 퀀텀 | 1,919 | 0 |
| 이오타 | 128 | 0 |









